Référence : 85959781
Copyright : Picthouse
Appartement à vendre Asnières-sur-Seine 92600 61.50m²
• 2 pièces • 2ème étage
92600 ASNIÈRES-SUR-SEINE
382 540 €
Description
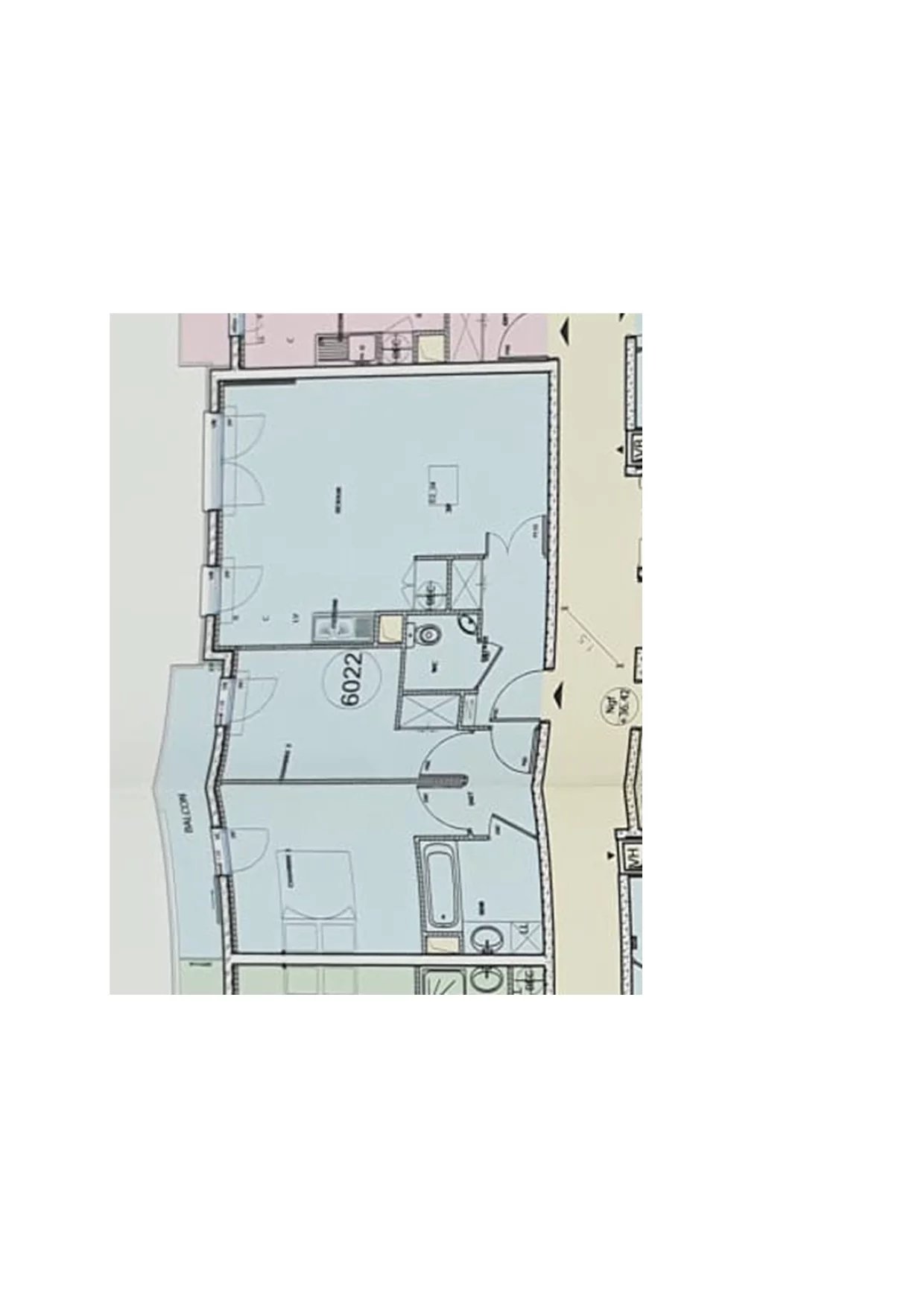
BNP PARIBAS REAL ESTATE vous propose en exclusivité un 3 pièces de 61,50 m² situé au 2ème étage d'un immeuble récent, accessible par ascenseur et situé au 6, Allée Berlin Spandau à Asnières sur Seine.
Il se compose d'une entrée, d’un séjour avec cuisine ouverte, de 2 chambres donnant sur un balcon de 4,80m², d'une salle de bains et un WC séparé. Ce bien est livré avec une cave et possibilité d'avoir en sus un emplacements de parking en sous-sol à 15 000€.
Digicode et visiophone. Chauffage individuel électrique.
Charges mensuelles estimées à 110€/mois - Taxe foncière estimée à 1200€/an - DPE en C.
Les informations sur les risques auxquels ce bien est exposé sont disponibles sur le site Géorisques (www.georisques.gouv.fr).
Visites sur rendez-vous : 06 42 89 37 49
Services et prestations
L'essentiel à retenir
- Date de construction : 2012
- Etat du bien : Bon état
Pièces du bien
- Entrée : 4.4m²
- Séjour/cuisine : 26.5m²
- Chambre : 9.7m²
- Chambre : 11.9m²
- Salle de bains : 4.4m²
- Dégagement : 2.7m²
- Toilettes : 1.9m²
- Balcon : 4.8m²
- Cave
- Parking intérieur
Cadres et installation
- Exposition : Nord-ouest
- Types de chauffages : Radiateur / Individuel
Prestation du bien
- Double vitrage
- Fenêtre PVC
- Fenêtres coulissantes
- Internet
- Fibre optique
- Double vitrage
- Fenêtre PVC
- Fenêtres coulissantes
- Fibre optique
Services et accessibilité
- Ascenseur
- Local à vélo
- Vidéophone
- Jardin en copropriété
- Accès handicapé
- Ascenseur
- Local à vélo
- Interphone
- Vidéophone
Consommations énergétique
149.00 kWh/m²/an
Emissions de gaz à effet de serre
4.00 kg eq.CO₂/m²/an
Localisation - 92600 ASNIÈRES-SUR-SEINE

Votre consultant :
Les appartements disponibles dans l'immeuble
Disponible

Appartement Asnières-sur-Seine 92600 99.20 m² • 5 pièces • Rez-de-chaussée
Asnières-sur-Seine
DPE : D
707 483 €
Voir le bien
Disponible

Appartement Asnières-sur-Seine 92600 46.60 m² • 2 pièces • Rez-de-chaussée
Asnières-sur-Seine
DPE : A
301 253 €
Voir le bien
Disponible

Appartement Asnières-sur-Seine 92600 59.50 m² • 3 pièces • Rez-de-chaussée
Asnières-sur-Seine
DPE : C
389 000 €
Voir le bien
Bientôt disponibles

Appartement Asnières-sur-Seine 92600 24.80 m² • 1 pièce • 2ème étage
Asnières-sur-Seine
DPE : D
170 930 €
Voir le bien
Les appartements disponibles à proximité
Bientôt disponibles

Appartement Asnières-sur-Seine 92600 88.80 m² • 4 pièces • 4ème étage
Asnières-sur-Seine
DPE : C
535 000 €
Voir le bien
Disponible

Appartement Levallois-Perret 92300 19.81 m² • 1 pièce • Rez-de-chaussée
Levallois-Perret
DPE : F
169 000 €
Voir le bien
Disponible

Appartement Levallois-Perret 92300 30.90 m² • 1 pièce • 6ème étage
Levallois-Perret
DPE : Non disponible
279 000 €
Voir le bien
Disponible

Appartement Levallois-Perret 92300 48.80 m² • 2 pièces • 1er étage
Levallois-Perret
DPE : Non disponible
434 500 €
Voir le bien
Disponible

Appartement Levallois-Perret 92300 51.90 m² • 2 pièces • 3ème étage
Levallois-Perret
DPE : Non disponible
481 000 €
Voir le bien
Disponible

Appartement Courbevoie 92400 11.50 m² • 1 pièce • Rez-de-chaussée
Courbevoie
DPE : Non disponible
85 000 €
Voir le bien
Disponible

Appartement Neuilly-sur-Seine 92200 152.40 m² • 5 pièces • 3ème étage
Neuilly-sur-Seine
DPE : Non disponible
2 310 000 €
Voir le bien
Disponible

Appartement Courbevoie 92400 69.90 m² • 3 pièces • 13ème étage
Courbevoie
DPE : C
547 000 €
Voir le bien
Disponible

Appartement Courbevoie 92400 63.80 m² • 3 pièces • 6ème étage
Courbevoie
DPE : D
470 000 €
Voir le bien
Disponible

Appartement Courbevoie 92400 69.90 m² • 3 pièces • 13ème étage
Courbevoie
DPE : A
499 000 €
Voir le bien








