Référence : 86088444
Copyright : Picthouse
Appartement à vendre Paris 16ème 75016 100.36m²
• 4 pièces • 4ème étage
75016 PARIS 16ÈME
1 298 000 €
Description
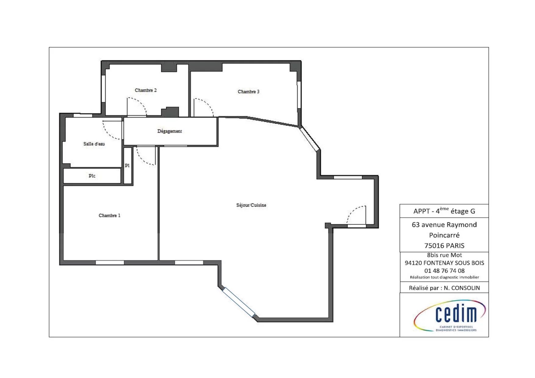
- PARIS XVI Métro VICTOR HUGO - 63 avenue Raymond Poincaré PARIS 16
- Dans un immeuble de 1928 de bon standing, venez découvrir ce très bel appartement de 4P traversant d'une surface de 100,36 m².
Ce bien efficacement agencé est situé au 4ème étage avec ascenseur. Il se compose d'une entrée desservant un séjour/salle à manger avec cuisine américaine entièrement équipée totalisant 53,30 m² donnant sur cours au calme, trois chambres, chambre parentale de 17,85 m², chambre 2 de 10,81 m² et chambre 3 de 7,35 m², une salle d'eau avec WC, deux grands placards, plus une cave de 8 m² en sous-sol.
Les fenêtres sont en double vitrage et un joli parquet agrémente ce bien.
L'immeuble dispose d'une gardienne et comprend un local poussettes au rdc. Pas de procédure en cours dans cette copropriété de 112 lots principaux.
Charges trimestrielles : 2667 €. Le chauffage est collectif (CPCU) ainsi que l'eau chaude.
Taxe foncière 2023 : 2030 €
Sur la localisation :
- A 300 m du Métro Victor Hugo (ligne 2)
- A 450 m du Métro Trocadéro (ligne 6 et 9)
Proche de toutes commodités (Trocadéro, Champs de mars et commerces de proximité rue Saint Didier, avenue Victor Hugo)
Prix : 1 298 000 €
Contact et visites : Julien MENARD 06 42 76 99 00.
Services et prestations
L'essentiel à retenir
- Date de construction : 1930
- Etat du bien : Excellent état
Pièces du bien
- Séjour/cuisine : 53.3m²
- Chambre : 17.85m²
- Chambre d'enfants : 10.61m²
- Chambre d'enfants : 7.35m²
- Salle de douche / toilettes : 5.44m²
- Dégagement : 5.81m²
Cadres et installation
- Vue : Dégagée
- Types de chauffages : Radiateur / Urbain
Prestation du bien
- Double vitrage
- Fenêtre PVC
- Internet
- Fibre optique
Services et accessibilité
- Alarme incendie
- Ascenseur
- Local à vélo
- Alarme
- Digicode
- Gardien
- Interphone
Consommations énergétique
288.00 kWh/m²/an
Emissions de gaz à effet de serre
86.00 kg eq.CO₂/m²/an
Localisation 63 Avenue Raymond Poincaré - 75016 PARIS 16ÈME

Votre consultant :
Les appartements disponibles à proximité
Disponible

Appartement Paris 17ème 75017 73.26 m² • 3 pièces • 3ème étage
Paris 17ème
DPE : D
969 000 €
Voir le bien
Disponible

Appartement Paris 17ème 75017 84.26 m² • 4 pièces • 1er étage
Paris 17ème
DPE : Non disponible
1 027 000 €
Voir le bien
Disponible

Appartement Paris 17ème 75017 83.86 m² • 4 pièces • 4ème étage
Paris 17ème
DPE : D
1 146 000 €
Voir le bien
Disponible

Appartement Paris 17ème 75017 88.00 m² • 4 pièces • 1er étage
Paris 17ème
DPE : Non disponible
1 075 000 €
Voir le bien
Disponible

Appartement Paris 17ème 75017 93.00 m² • 4 pièces • 3ème étage
Paris 17ème
DPE : Non disponible
1 230 000 €
Voir le bien
Disponible

Appartement Paris 16ème 75016 148.10 m² • 5 pièces • 2ème étage
Paris 16ème
DPE : F
1 615 000 €
Voir le bien
Disponible

Appartement Paris 15ème 75015 77.60 m² • 3 pièces • 3ème étage
Paris 15ème
DPE : C
940 000 €
Voir le bien
Disponible

Appartement Paris 15ème 75015 75.47 m² • 4 pièces • 3ème étage
Paris 15ème
DPE : D
885 000 €
Voir le bien
Bientôt disponibles

Appartement Levallois-Perret 92300 21.10 m² • 1 pièce • 2ème étage
Levallois-Perret
DPE : Non disponible
207 556 €
Voir le bien
Bientôt disponibles

Appartement Levallois-Perret 92300 47.60 m² • 2 pièces • 1er étage
Levallois-Perret
DPE : Non disponible
398 265 €
Voir le bien













