Référence : 85906094
Copyright : Picthouse
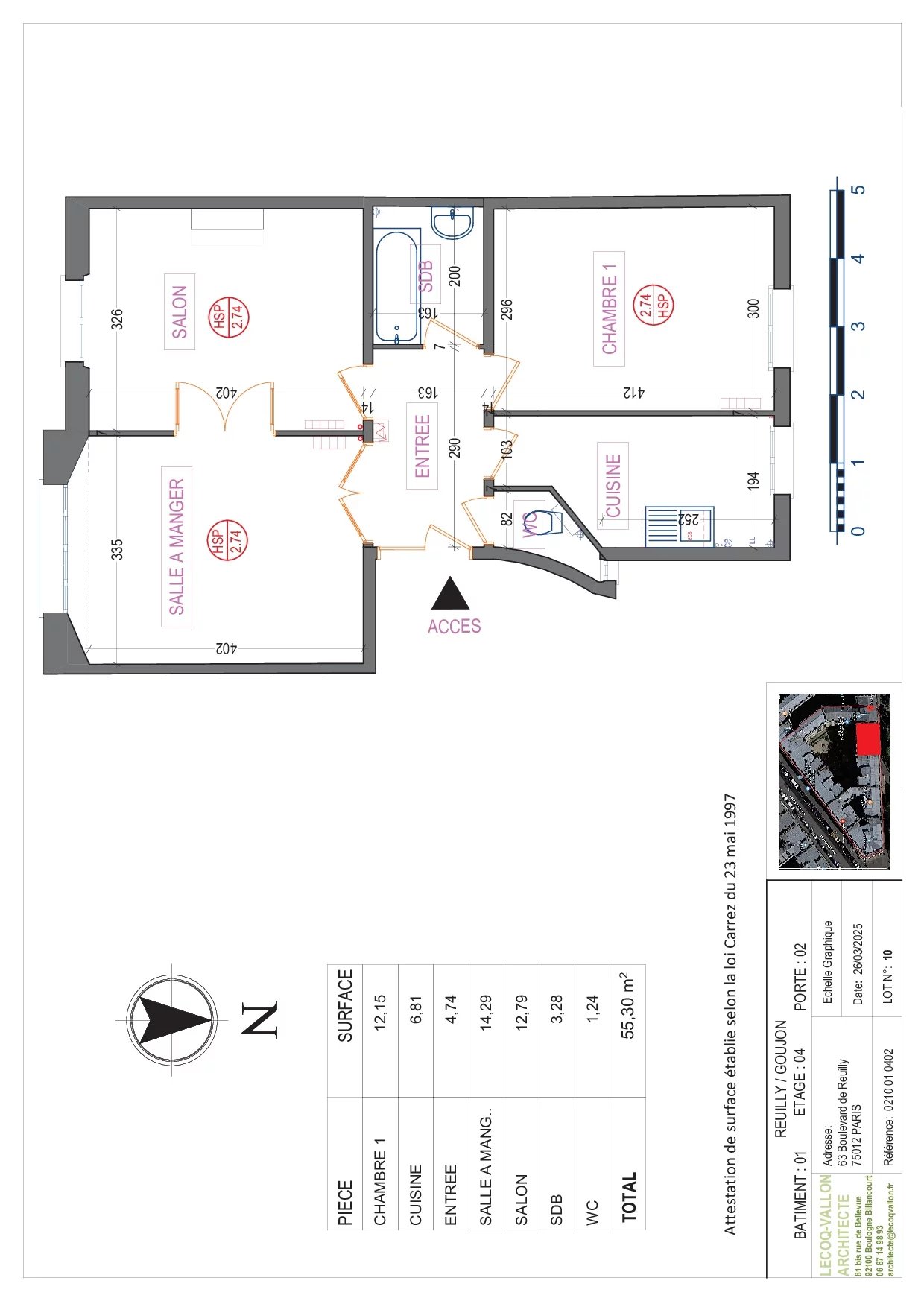
Appartement à vendre Paris 12ème 75012 55.30m²
• 3 pièces • 4ème étage
75012 PARIS 12ÈME
469 000 €
Description
Au 63 bd de Reuilly - Métro Daumesnil - Proche tous commerces, dans bel immeuble PDT avec accès sécurisés, situé au 4ème étage avec ascenseur, un 3 pièces de 55,30 m² à rénover.
Cet appartement comprend une entrée de 4,74 m², un séjour de 14,29 m², une salle à manger (2ème chambre possible) de 12,79 m², une chambre de 12,15 m², une cuisine de 6,81 m², une salle de bain de 3,28 m² et des sanitaires indépendants de 1,24 m². Appartement sans vis à vis - Exposition SUD.
Chauffage collectif GAZ, eau chaude individuelle électrique - Vigik - Interphone
DPE : CATEGORIE E.
Les informations sur les risques auxquels ce bien est exposé sont disponibles sur le site Géorisques : www.géorisques.gouv.fr.
Provisions de charges de copropriété 325 €/mois.
Copropriété de 20 lots principaux.
Pas de procédure en cours
Contact pour visiter : Marc MAJESTE : 06 71 45 02 35
Services et prestations
L'essentiel à retenir
- Etat du bien : À rénover
Pièces du bien
- Chambre : 12.15m²
- Cuisine : 6.81m²
- Entrée : 4.74m²
- Salle à manger : 14.29m²
- Salon : 12.79m²
- Salle de bains : 3.28m²
- Toilettes : 1.24m²
Cadres et installation
- Vue : Dégagée
- Exposition : Sud
- Types de chauffages : Radiateur / Collectif
Prestation du bien
- Cheminée
- Internet
- Fibre optique
Services et accessibilité
- Ascenseur
- Local à vélo
- Digicode
- Interphone
Consommations énergétique
278.00 kWh/m²/an
Emissions de gaz à effet de serre
Étiquette énergétique non fournie par le propriétaire
Localisation 63 Boulevard de Reuilly - 75012 PARIS 12ÈME

Votre consultant :
Les appartements disponibles à proximité
Disponible

Appartement Paris 12ème 75012 73.13 m² • 3 pièces • 1er étage
Paris 12ème
DPE : E
580 000 €
Voir le bien
Disponible

Appartement Paris 13ème 75013 45.30 m² • 2 pièces • 2ème étage
Paris 13ème
DPE : A
441 495 €
Voir le bien
Disponible

Appartement Paris 13ème 75013 60.40 m² • 3 pièces • 6ème étage
Paris 13ème
DPE : A
610 289 €
Voir le bien
Disponible

Appartement Paris 13ème 75013 72.20 m² • 3 pièces • 14ème étage
Paris 13ème
DPE : A
873 039 €
Voir le bien
Disponible

Appartement Paris 13ème 75013 101.40 m² • 5 pièces • 8ème étage
Paris 13ème
DPE : A
1 172 070 €
Voir le bien
Disponible

Appartement Paris 13ème 75013 32.20 m² • 1 pièce • 7ème étage
Paris 13ème
DPE : A
332 260 €
Voir le bien
Disponible

Appartement Paris 13ème 75013 60.10 m² • 3 pièces • 2ème étage
Paris 13ème
DPE : A
521 269 €
Voir le bien
Disponible

Appartement Paris 13ème 75013 60.60 m² • 3 pièces • 14ème étage
Paris 13ème
DPE : A
668 219 €
Voir le bien
Disponible

Appartement Paris 13ème 75013 84.80 m² • 4 pièces • 14ème étage
Paris 13ème
DPE : A
1 035 029 €
Voir le bien
Disponible

Appartement Paris 13ème 75013 83.70 m² • 4 pièces • 2ème étage
Paris 13ème
DPE : A
838 562 €
Voir le bien








