Référence : 86229854
Shoooting / Julien Dominguez
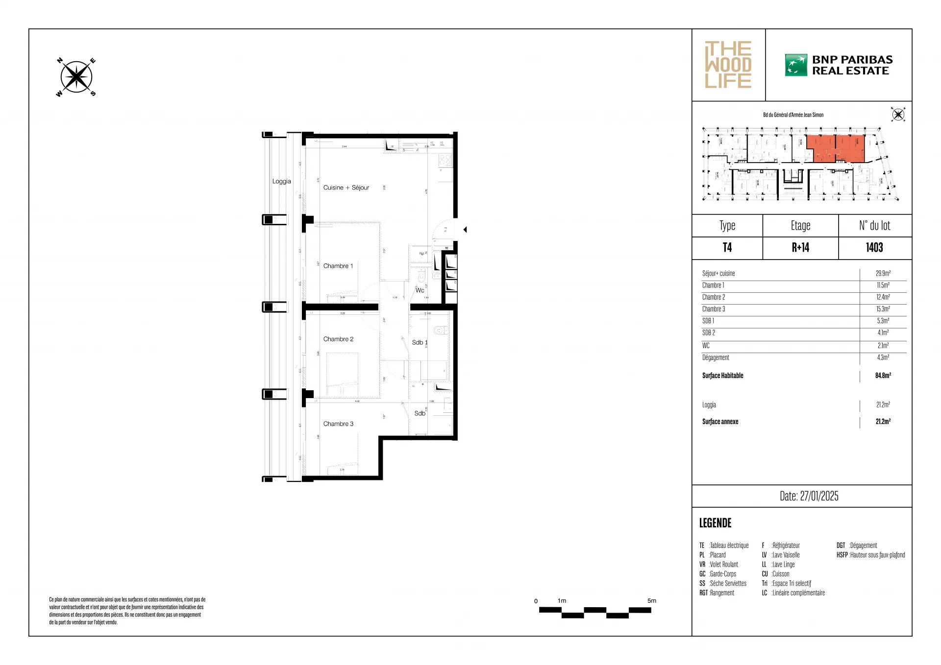
Appartement à vendre Paris 13ème 75013 84.80m²
• 4 pièces • 14ème étage
75013 PARIS 13ÈME
1 035 029 €
Description
Découvrez The Wood Life, une résidence idéalement située à Paris 13ᵉ, dans le quartier dynamique de Masséna, offrant un cadre de vie recherché en bord de Seine.
Implantée au 3/7 boulevard du Général Jean Simon, cette adresse bénéficie d’un environnement urbain attractif, à proximité immédiate des commerces, pôles universitaires, lieux culturels et espaces de loisirs du 13ᵉ arrondissement. Le quartier séduit par son équilibre entre vie parisienne, innovation et qualité de vie.
La résidence se distingue par ses espaces extérieurs rares à Paris, avec une terrasse partagée en étage élevé offrant des vues dégagées sur la Seine, ainsi qu’un rooftop paysager proposant une vue panoramique à 360° sur Paris.
L’accessibilité est optimale :
Métro ligne 14 à environ 10 minutes à pied*.
Accès rapide aux grands pôles parisiens.
Sur la localisation :
A 10 minutes à pieds de la ligne 14 M° Bibliothèque François Mitterrand et du REC C
A une minute pied du Tram 3A
A 20 minutes à pied de la ligne 6 M° Quai de la gare
The Wood Life s’adresse aussi bien aux acquéreurs en quête d’un cadre de vie de qualité à Paris 13ᵉ qu’aux investisseurs recherchant un emplacement stratégique en bord de Seine.
BNP PARIBAS REALESTATE vous propose en exclusivité au 14eme étage un superbe 4 pièces avec vue seine de 84.80 m² + 21² de loggia exposé Nord/Ouest, accessible par 2 ascenseurs et composé d'un séjour avec cuisine US aménagée d'une surface de 29.90m², trois chambres (11,50m², 12,40m² et 15,30m²), deux salles de douche dont une avec WC et un 2ème toilette séparé. Une place de parking complète ce bien. ( Cellier possible en option).
Un joli parquet agrémente cet appartement extrêmement lumineux bénéficie d'une magnifique vue sur la ville , l'eau chaude est collective et le chauffage est collectif CPCU.
Pas de procédure en cours dans cette copropriété de 132 lots principaux. Charges mensuelles estimées à 350€/mois - DPE B.
La plupart des appartements vous offriront de grandes baies vitrées et d’espace extérieurs.
****PROFITEZ D'UN LARGE CHOIX D'APPARTEMENT****
L'immeuble comprend, digicode, gardien et visiophone ainsi qu'un local vélo.
Les informations sur les risques auxquels ce bien est exposé sont disponible sur le site Géorisques : www.géorisques.gouv.fr
Prix : 1 035 029€
Contact et visite : 07 88 78 90 99
**Hors frais bancaires, hors frais de rédaction d’acte, hors hypothèques, hors frais de caution et de privilège de prêteur de deniers ou tous autres frais liés au financement de l’acquisition, consentis pour la signature d’un contrat de réservation dans la limite des 10 premières réservations et sous réserve de signature de l’acte de vente dans les 2 mois de la réservation. Dans la limite des stocks disponibles. Cette offre est exclusive de toute autre offre de BNP Paribas Advisory France .
Services et prestations
L'essentiel à retenir
- Date de construction : 2024
- Etat du bien : Neuf
Pièces du bien
- Séjour/cuisine : 29.9m²
- Chambre : 11.5m²
- Chambre : 12.4m²
- Chambre : 15.3m²
- Salle de bains : 5.3m²
- Salle de bains : 4.1m²
- Toilette PMR : 2.1m²
- Dégagement : 4.3m²
- Loggia
Cadres et installation
- Vue : Dégagée
- Exposition : Nord-ouest
- Types de chauffages : Radiateur / Collectif
Prestation du bien
- Double vitrage
- Fenêtres coulissantes
- Internet
- Fibre optique
- Fenêtre aluminium
Services et accessibilité
- Accès handicapé
- Alarme incendie
- Ascenseur
- Local à vélo
- Gardien
- Vidéophone
- Jardin en copropriété
- Digicode
- Portail électrique
- Porte blindée
Consommations énergétique
52.00 kWh/m²/an
Emissions de gaz à effet de serre
8.00 kg eq.CO₂/m²/an
Localisation 3 Boulevard du Général Jean Simon - 75013 PARIS 13ÈME

Votre consultant :
Les appartements disponibles dans l'immeuble
Disponible

Appartement Paris 13ème 75013 32.20 m² • 1 pièce • 7ème étage
Paris 13ème
DPE : A
332 260 €
Voir le bien
Disponible

Appartement Paris 13ème 75013 45.70 m² • 2 pièces • 3ème étage
Paris 13ème
DPE : A
438 558 €
Voir le bien
Disponible

Appartement Paris 13ème 75013 45.30 m² • 2 pièces • 2ème étage
Paris 13ème
DPE : A
441 495 €
Voir le bien
Disponible

Appartement Paris 13ème 75013 60.40 m² • 3 pièces • 6ème étage
Paris 13ème
DPE : A
610 289 €
Voir le bien
Disponible

Appartement Paris 13ème 75013 60.60 m² • 3 pièces • 14ème étage
Paris 13ème
DPE : A
668 219 €
Voir le bien
Disponible

Appartement Paris 13ème 75013 68.30 m² • 3 pièces • 2ème étage
Paris 13ème
DPE : A
693 583 €
Voir le bien
Disponible

Appartement Paris 13ème 75013 72.20 m² • 3 pièces • 14ème étage
Paris 13ème
DPE : A
873 039 €
Voir le bien
Disponible

Appartement Paris 13ème 75013 127.60 m² • 5 pièces • 14ème étage
Paris 13ème
DPE : A
1 521 438 €
Voir le bien
Disponible

Appartement Paris 13ème 75013 101.40 m² • 5 pièces • 8ème étage
Paris 13ème
DPE : A
1 172 070 €
Voir le bien
Disponible

Appartement Paris 13ème 75013 87.90 m² • 4 pièces • 14ème étage
Paris 13ème
DPE : A
1 068 280 €
Voir le bien
Disponible

Appartement Paris 13ème 75013 87.90 m² • 4 pièces • 6ème étage
Paris 13ème
DPE : A
983 444 €
Voir le bien
Disponible

Appartement Paris 13ème 75013 83.70 m² • 4 pièces • 2ème étage
Paris 13ème
DPE : A
838 562 €
Voir le bien
Disponible

Appartement Paris 13ème 75013 75.00 m² • 3 pièces • 8ème étage
Paris 13ème
DPE : A
880 000 €
Voir le bien
Disponible

Appartement Paris 13ème 75013 101.50 m² • 4 pièces • 14ème étage
Paris 13ème
DPE : A
1 397 000 €
Voir le bien
Disponible

Appartement Paris 13ème 75013 29.40 m² • 1 pièce • 7ème étage
Paris 13ème
DPE : A
360 248 €
Voir le bien
Disponible

Appartement Paris 13ème 75013 45.30 m² • 2 pièces • 2ème étage
Paris 13ème
DPE : A
468 929 €
Voir le bien
Disponible

Appartement Paris 13ème 75013 60.60 m² • 3 pièces • 14ème étage
Paris 13ème
DPE : A
829 000 €
Voir le bien
Disponible

Appartement Paris 13ème 75013 45.90 m² • 2 pièces • 7ème étage
Paris 13ème
DPE : A
552 640 €
Voir le bien
Disponible

Appartement Paris 13ème 75013 72.10 m² • 3 pièces • 8ème étage
Paris 13ème
DPE : A
888 000 €
Voir le bien
Disponible

Appartement Paris 13ème 75013 87.70 m² • 4 pièces • 2ème étage
Paris 13ème
DPE : A
994 800 €
Voir le bien
Disponible

Appartement Paris 13ème 75013 80.30 m² • 4 pièces • 6ème étage
Paris 13ème
DPE : A
1 035 957 €
Voir le bien
Disponible

Appartement Paris 13ème 75013 60.10 m² • 3 pièces • 2ème étage
Paris 13ème
DPE : A
521 269 €
Voir le bien
Disponible

Appartement Paris 13ème 75013 28.90 m² • 1 pièce • 3ème étage
Paris 13ème
DPE : A
343 765 €
Voir le bien
Disponible

Appartement Paris 13ème 75013 29.20 m² • 1 pièce • 7ème étage
Paris 13ème
DPE : A
345 265 €
Voir le bien
Les appartements disponibles à proximité
Disponible

Appartement Paris 12ème 75012 55.30 m² • 3 pièces • 4ème étage
Paris 12ème
DPE : E
469 000 €
Voir le bien
Disponible

Appartement Paris 12ème 75012 42.09 m² • 2 pièces • 6ème étage
Paris 12ème
DPE : E
379 000 €
Voir le bien
Disponible

Appartement Paris 12ème 75012 73.13 m² • 3 pièces • 1er étage
Paris 12ème
DPE : E
509 000 €
Voir le bien
Disponible

Appartement Paris 13ème 75013 37.07 m² • 2 pièces • 5ème étage
Paris 13ème
DPE : E
379 000 €
Voir le bien
Disponible

Appartement Paris 13ème 75013 54.20 m² • 3 pièces • 5ème étage
Paris 13ème
DPE : E
529 000 €
Voir le bien
Disponible

Appartement Paris 20ème 75020 41.80 m² • 3 pièces • Rez-de-chaussée
Paris 20ème
DPE : D
350 000 €
Voir le bien
Disponible

Appartement Paris 20ème 75020 107.00 m² • 5 pièces • Rez-de-chaussée
Paris 20ème
DPE : Non disponible
1 552 000 €
Voir le bien
Disponible

Appartement Paris 20ème 75020 99.46 m² • 4 pièces • 3ème étage
Paris 20ème
DPE : Non disponible
1 397 000 €
Voir le bien
Disponible

Appartement Montrouge 92120 41.81 m² • 2 pièces • 4ème étage
Montrouge
DPE : E
230 000 €
Voir le bien
Disponible

Appartement Paris 14ème 75014 70.60 m² • 3 pièces • 2ème étage
Paris 14ème
DPE : E
795 000 €
Voir le bien













