Référence : 86640987
Copyright : Picthouse
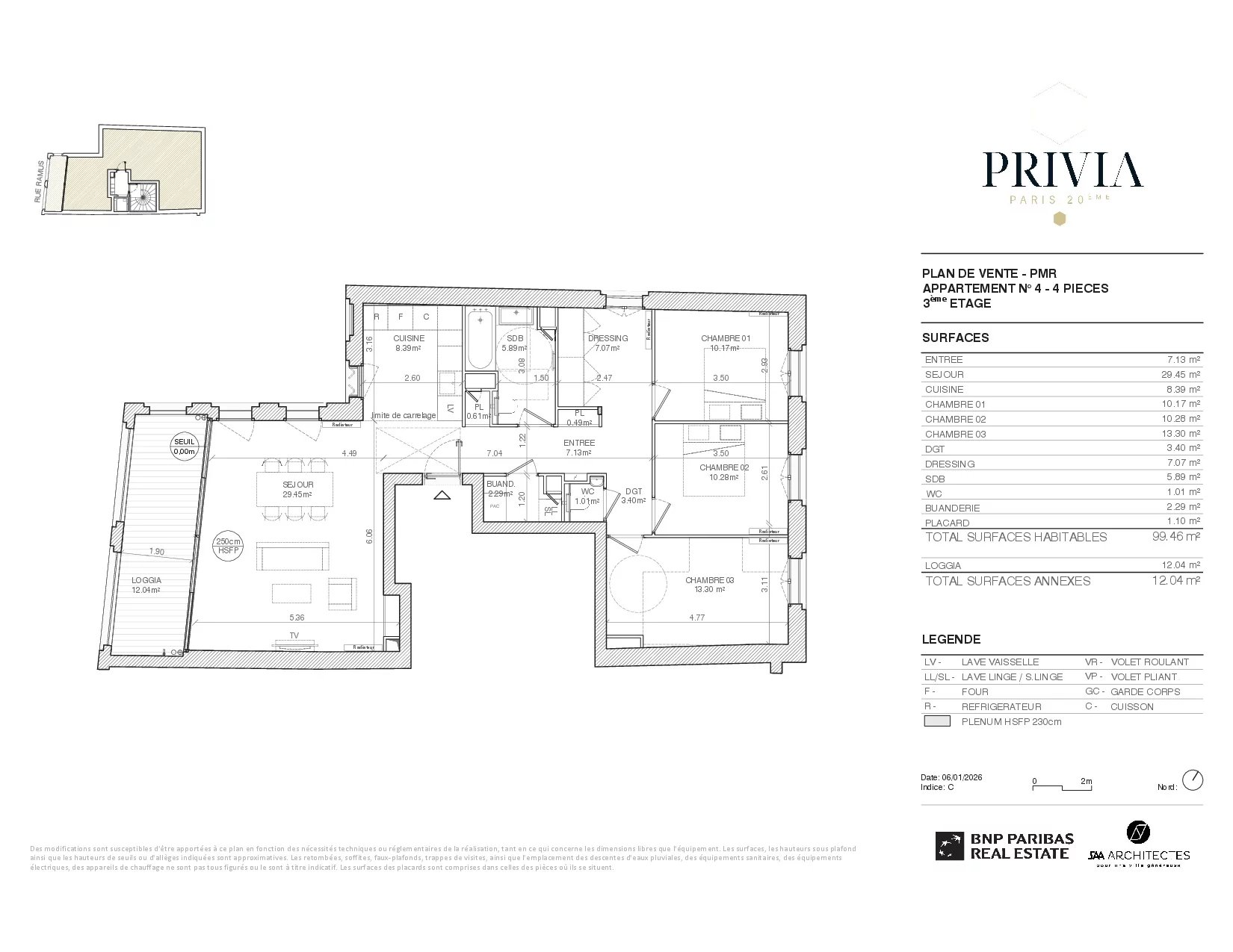
Appartement à vendre Paris 20ème 75020 99.46m²
• 4 pièces • 3ème étage
75020 PARIS 20ÈME
1 397 000 €
Description
Adresse rare, volumes exceptionnels et prestations haut de gamme : ce 4 pièces neuf situé dans une résidence intimiste du 20ᵉ arrondissement incarne un art de vivre exclusif à Paris.
La résidence propose un seul appartement par étage, assurant une tranquillité absolue et une qualité de vie premium. Ce logement familial offre de très beaux volumes, une circulation fluide et une luminosité naturelle remarquable.
L’appartement bénéficie d’un extérieur privatif (loggia de 12 m²) , idéal pour profiter pleinement de la vie parisienne dans un environnement préservé.
Pensé pour un confort optimal, le logement est équipé d’une pompe à chaleur, alliée à une conception conforme à la RE2020 seuil 2025.
Les prestations sont à la hauteur de l’adresse : parquet massif, finitions haut de gamme, matériaux sélectionnés avec soin.
Situé face au cimetière du Père-Lachaise, dans le quartier prisé de Gambetta, à proximité immédiate des transports, commerces et établissements scolaires.
Un 4 pièces neuf d’exception, rare sur le marché parisien.
Livraison prévue 3ème trimestre 2027
Services et prestations
Pièces du bien
- Entrée : 7.13m²
- Séjour : 29.45m²
- Cuisine : 8.39m²
- Chambre : 10.17m²
- Chambre : 10.28m²
- Chambre : 13.3m²
- Dégagement : 3.4m²
- Dressing : 7.07m²
- Salle de bains : 5.89m²
- Toilettes : 1.01m²
- Buanderie : 2.29m²
- Placard : 1.1m²
- Loggia : 12.04m²
Cadres et installation
- Vue : Aperçu
- Types de chauffages : Climatisation / Individuel
Prestation du bien
- Internet
- Fibre optique
Services et accessibilité
- Accès handicapé
- Ascenseur
- Local à vélo
Consommations énergétique
Étiquette énergétique non fournie par le propriétaire
Emissions de gaz à effet de serre
Étiquette énergétique non fournie par le propriétaire
Localisation 54 Rue Ramus - 75020 PARIS 20ÈME

Votre consultant :
Les appartements disponibles dans l'immeuble
Disponible

Appartement Paris 20ème 75020 107.00 m² • 5 pièces • 1er étage
Paris 20ème
DPE : Non disponible
1 552 000 €
Voir le bien
Disponible

Appartement Paris 20ème 75020 92.00 m² • 5 pièces • Rez-de-chaussée
Paris 20ème
DPE : Non disponible
1 345 000 €
Voir le bien
Les appartements disponibles à proximité
Disponible

Appartement Paris 20ème 75020 41.80 m² • 3 pièces • Rez-de-chaussée
Paris 20ème
DPE : D
350 000 €
Voir le bien
Disponible

Appartement Paris 12ème 75012 73.13 m² • 3 pièces • 1er étage
Paris 12ème
DPE : E
580 000 €
Voir le bien
Disponible

Appartement Paris 19ème 75019 80.92 m² • 5 pièces • 10ème étage
Paris 19ème
DPE : E
499 000 €
Voir le bien
Disponible

Appartement Paris 19ème 75019 30.00 m² • 1 pièce • 2ème étage
Paris 19ème
DPE : E
225 000 €
Voir le bien
Disponible

Appartement Paris 12ème 75012 55.30 m² • 3 pièces • 4ème étage
Paris 12ème
DPE : E
469 000 €
Voir le bien
Disponible

Appartement Paris 18ème 75018 48.12 m² • 2 pièces • 2ème étage
Paris 18ème
DPE : C
365 000 €
Voir le bien
Disponible

Appartement Paris 13ème 75013 45.30 m² • 2 pièces • 2ème étage
Paris 13ème
DPE : A
441 495 €
Voir le bien
Disponible

Appartement Paris 13ème 75013 60.40 m² • 3 pièces • 6ème étage
Paris 13ème
DPE : A
610 289 €
Voir le bien
Disponible

Appartement Paris 13ème 75013 72.20 m² • 3 pièces • 14ème étage
Paris 13ème
DPE : A
873 039 €
Voir le bien
Disponible

Appartement Paris 13ème 75013 101.40 m² • 5 pièces • 8ème étage
Paris 13ème
DPE : A
1 172 070 €
Voir le bien






