Référence : 85347317
Shoooting / Julien Dominguez
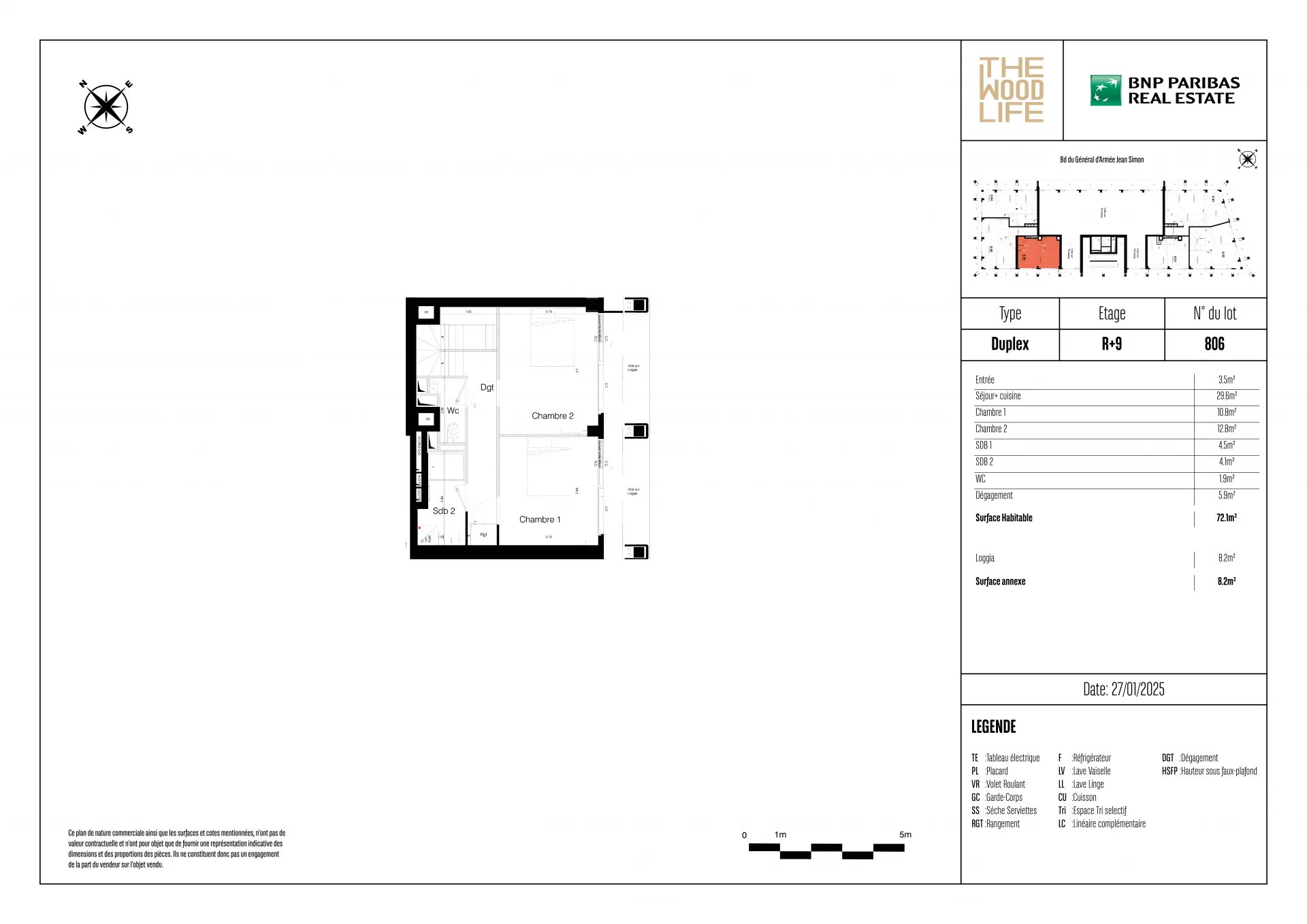
Appartement à vendre Paris 13ème 75013 72.10m²
• 3 pièces • 8ème étage
75013 PARIS 13ÈME
888 000 €
Description
****FRAIS DE NOTAIRE OFFERTS POUR LES 10 PREMIERES RESERVATIONS****
Profitez d’un immeuble Neuf livré, The Wood Life vous permettra d’Acheter votre logement et d’y vivre sans attendre !
Situé au 3/7 boulevard du général Jean Simon Paris 13 en bord de seine et au sein du quartier Massena, venez découvrir une des premières résidences en bois éco-responsable sur Paris, dans un environnement dynamique du 13ème arrondissement animé par ses galeries d’art contemporain, son campus, son réservoir de start-up, ses grandes enseignes, la Cité de la Mode & du Design et la bibliothèque François Mitterrand.
La résidence vous offrira au 8eme étage une vaste terrasse partagée avec une superbe vue sur la seine ainsi qu’un potager partager au 16eme et dernier étage avec une vue à 360°.
La plupart des appartements vous offriront de grandes baies vitrées et d’espace extérieurs.
****PROFITEZ D'UN LARGE CHOIX D'APPARTEMENTS****
L'immeuble comprend, digicode, gardien et visiophone ainsi qu'un local vélo.
BNP PARIBAS REALESTATE vous propose en exclusivité au 8eme étage et 9eme étage en duplex un agréable 3 pièces avec vue dégagée sans vis à vis de 72,1 m² + 8m² de balcon exposé Sus/ouest, accessible par 2 ascenseurs et composé au 8eme étage : d'une entrée desservant un séjour avec cuisine US aménagée donnant sur le balcon, une salle d'eau avec WC, Au 9eme étage : dégagement, deux chambres, une salle de bains, un wc séparé.
Un joli parquet agrémente cet appartement lumineux, l'eau chaude est collective et le chauffage est collectif CPCU.
Pas de procédure en cours dans cette copropriété de 132 lots principaux. Charges mensuelles estimées à 345/mois - DPE B.
Les informations sur les risques auxquels ce bien est exposé sont disponible sur le site Géorisques : www.géorisques.gouv.fr
Sur la localisation :
A 10 minutes a pied de la ligne 14 M° Bibliothèque François Mitterrand et du REC C
A une minute pied du Tram 3A
A 20 minutes à pied de la ligne 6 M° Quai de la gare
Contact et visite : 07 88 78 90 99
****Hors frais bancaires, hors frais de rédaction d’acte, hors hypothèques, hors frais de caution et de privilège de prêteur de deniers ou tous autres frais liés au financement de l’acquisition, consentis pour la signature d’un contrat de réservation. Dans la limite des stocks disponibles. Cette offre est exclusive de toute autre offre de BNP Paribas Real Estate CHH.
Services et prestations
L'essentiel à retenir
- Date de construction : 2024
- Etat du bien : Neuf
Pièces du bien
- Entrée
- Séjour/cuisine
- Salle de douche / toilettes
- Escalier
- Toilettes
- Chambre
- Chambre
- Salle de douche
- Balcon
Cadres et installation
- Vue : Dégagée
- Exposition : Sud-ouest
- Types de chauffages : Radiateur / Collectif
Prestation du bien
- Double vitrage
- Fenêtre aluminium
- Fenêtres coulissantes
- Internet
- Fibre optique
Services et accessibilité
- Accès handicapé
- Alarme incendie
- Ascenseur
- Local à vélo
- Digicode
- Portail électrique
- Porte blindée
- Vidéophone
- Jardin en copropriété
- Gardien
Consommations énergétique
52.00 kWh/m²/an
Emissions de gaz à effet de serre
8.00 kg eq.CO₂/m²/an
Localisation 11 Boulevard du Général Jean Simon - 75013 PARIS 13ÈME

Votre consultant :
Les appartements disponibles dans l'immeuble
Disponible

Appartement Paris 13ème 75013 68.30 m² • 3 pièces • 2ème étage
Paris 13ème
DPE : A
693 583 €
Voir le bien
Disponible

Appartement Paris 13ème 75013 127.60 m² • 5 pièces • 14ème étage
Paris 13ème
DPE : A
1 521 438 €
Voir le bien
Disponible

Appartement Paris 13ème 75013 80.30 m² • 4 pièces • 6ème étage
Paris 13ème
DPE : A
1 035 957 €
Voir le bien
Disponible

Appartement Paris 13ème 75013 87.70 m² • 4 pièces • 2ème étage
Paris 13ème
DPE : A
994 800 €
Voir le bien
Disponible

Appartement Paris 13ème 75013 60.10 m² • 3 pièces • 2ème étage
Paris 13ème
DPE : A
521 269 €
Voir le bien
Disponible

Appartement Paris 13ème 75013 29.20 m² • 1 pièce • 7ème étage
Paris 13ème
DPE : A
345 265 €
Voir le bien
Disponible

Appartement Paris 13ème 75013 45.70 m² • 2 pièces • 3ème étage
Paris 13ème
DPE : A
438 558 €
Voir le bien
Disponible

Appartement Paris 13ème 75013 45.30 m² • 2 pièces • 2ème étage
Paris 13ème
DPE : A
468 929 €
Voir le bien
Disponible

Appartement Paris 13ème 75013 45.90 m² • 2 pièces • 7ème étage
Paris 13ème
DPE : A
552 640 €
Voir le bien
Disponible

Appartement Paris 13ème 75013 28.90 m² • 1 pièce • 3ème étage
Paris 13ème
DPE : A
343 765 €
Voir le bien
Disponible

Appartement Paris 13ème 75013 87.90 m² • 4 pièces • 6ème étage
Paris 13ème
DPE : A
983 444 €
Voir le bien
Disponible

Appartement Paris 13ème 75013 101.50 m² • 4 pièces • 14ème étage
Paris 13ème
DPE : A
1 397 000 €
Voir le bien
Disponible

Appartement Paris 13ème 75013 75.00 m² • 3 pièces • 8ème étage
Paris 13ème
DPE : A
880 000 €
Voir le bien
Disponible

Appartement Paris 13ème 75013 29.40 m² • 1 pièce • 7ème étage
Paris 13ème
DPE : A
360 248 €
Voir le bien
Disponible

Appartement Paris 13ème 75013 87.90 m² • 4 pièces • 14ème étage
Paris 13ème
DPE : A
1 068 280 €
Voir le bien
Disponible

Appartement Paris 13ème 75013 60.60 m² • 3 pièces • 14ème étage
Paris 13ème
DPE : A
829 000 €
Voir le bien
Disponible

Appartement Paris 13ème 75013 60.60 m² • 3 pièces • 14ème étage
Paris 13ème
DPE : A
668 219 €
Voir le bien
Disponible

Appartement Paris 13ème 75013 84.80 m² • 4 pièces • 14ème étage
Paris 13ème
DPE : A
1 035 029 €
Voir le bien
Disponible

Appartement Paris 13ème 75013 83.70 m² • 4 pièces • 2ème étage
Paris 13ème
DPE : A
838 562 €
Voir le bien
Disponible

Appartement Paris 13ème 75013 45.30 m² • 2 pièces • 2ème étage
Paris 13ème
DPE : A
441 495 €
Voir le bien
Disponible

Appartement Paris 13ème 75013 60.40 m² • 3 pièces • 6ème étage
Paris 13ème
DPE : A
610 289 €
Voir le bien
Disponible

Appartement Paris 13ème 75013 72.20 m² • 3 pièces • 14ème étage
Paris 13ème
DPE : A
873 039 €
Voir le bien
Disponible

Appartement Paris 13ème 75013 101.40 m² • 5 pièces • 8ème étage
Paris 13ème
DPE : A
1 172 070 €
Voir le bien
Disponible

Appartement Paris 13ème 75013 32.20 m² • 1 pièce • 7ème étage
Paris 13ème
DPE : A
332 260 €
Voir le bien
Disponible

Appartement Paris 13ème 75013 32.70 m² • 1 pièce • 7ème étage
Paris 13ème
DPE : A
356 735 €
Voir le bien
Disponible

Appartement Paris 13ème 75013 65.40 m² • 3 pièces • 1er étage
Paris 13ème
DPE : Non disponible
632 832 €
Voir le bien
Les appartements disponibles à proximité
Disponible

Appartement Paris 12ème 75012 55.30 m² • 3 pièces • 4ème étage
Paris 12ème
DPE : E
469 000 €
Voir le bien
Disponible

Appartement Paris 12ème 75012 42.09 m² • 2 pièces • 6ème étage
Paris 12ème
DPE : E
379 000 €
Voir le bien
Disponible

Appartement Paris 12ème 75012 73.13 m² • 3 pièces • 1er étage
Paris 12ème
DPE : E
509 000 €
Voir le bien
Disponible

Appartement Paris 13ème 75013 37.07 m² • 2 pièces • 5ème étage
Paris 13ème
DPE : E
379 000 €
Voir le bien
Disponible

Appartement Paris 13ème 75013 54.20 m² • 3 pièces • 5ème étage
Paris 13ème
DPE : E
529 000 €
Voir le bien
Disponible

Appartement Paris 13ème 75013 35.56 m² • 2 pièces • 5ème étage
Paris 13ème
DPE : E
349 000 €
Voir le bien
Disponible

Appartement Paris 20ème 75020 41.80 m² • 3 pièces • Rez-de-chaussée
Paris 20ème
DPE : D
350 000 €
Voir le bien
Disponible

Appartement Paris 20ème 75020 107.00 m² • 5 pièces • Rez-de-chaussée
Paris 20ème
DPE : Non disponible
1 552 000 €
Voir le bien
Disponible

Appartement Paris 20ème 75020 99.46 m² • 4 pièces • 3ème étage
Paris 20ème
DPE : Non disponible
1 397 000 €
Voir le bien
Disponible

Appartement Montrouge 92120 41.81 m² • 2 pièces • 4ème étage
Montrouge
DPE : E
230 000 €
Voir le bien








