Référence : 86565196
Copyright : Picthouse
Appartement à vendre Saint-Maurice 52200 20.30m²
• 0 pièces • 6ème étage
52200 SAINT-MAURICE
115 385 €
Description
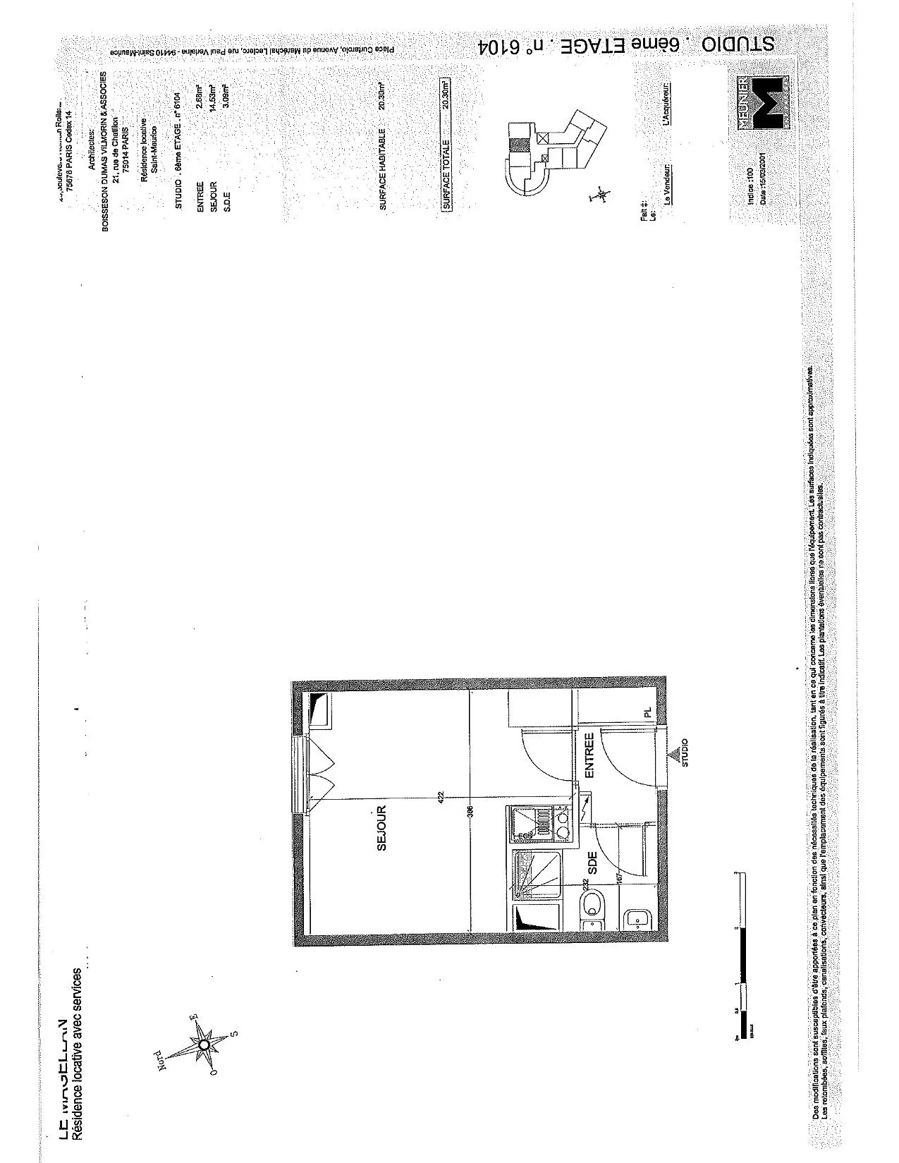
Résidence située au 1 rue Paul Verlaine à Saint-Maurice - RER A Station Joinville-Le-Pont, Métro Maison Alfort Les Juilliottes, proche des commerces. Dans une résidence avec gardien et accès sécurisés, situé au 6 éme étage avec ascenseur, un studio de 20,30 m² avec une vue dégagée.
Cet appartement de 20,30 m², comprend une entrée de 2,68 m², un séjour avec cuisine ouverte de 14,53 m², une salle d'eau avec wc de 3,09 m². Calme et lumineux.
Chauffage individuel électrique - Eau chaude individuelle par ballon d'eau chaude - Vigik - Interphone
DPE : CATEGORIE D.
Les informations sur les risques auxquels ce bien est exposé sont disponibles sur le site Géorisques : www.géorisques.gouv.fr.
Loyer annuel : 6.200 euros
Provisions de charges de copropriété 400 €/an.
Estimation taxe foncière de 600 euros pour l'année 2024.
Honoraires de commercialisation à la charge de l'acquéreur soit 8.653,79 euros HT et 10.384,55 euros TTC
Copropriété de 88 lots.
Pas de procédure en cours
Contact pour infos et visites : Julien MENARD 06 42 76 99 00
Services et prestations
L'essentiel à retenir
- Date de construction : 2001
- Etat du bien : Bon état
Pièces du bien
- Entrée : 2.68m²
- Séjour/cuisine : 14.53m²
- Salle de douche : 3.09m²
Cadres et installation
- Vue : Dégagée
- Exposition : Nord-est
- Types de chauffages : Convecteur / Individuel
Prestation du bien
- Double vitrage
- Fenêtre PVC
- Internet
- Stores
- Fibre optique
Services et accessibilité
- Accès handicapé
- Alarme incendie
- Ascenseur
- Local à vélo
- Alarme
- Gardien
- Interphone
- Salle de sport
Consommations énergétique
236.00 kWh/m²/an
Emissions de gaz à effet de serre
7.00 kg eq.CO₂/m²/an
Localisation 1 Rue Paul Verlaine - 52200 SAINT-MAURICE

Votre consultant :
Les appartements disponibles à proximité
Disponible

Appartement Paris 12ème 75012 55.30 m² • 3 pièces • 4ème étage
Paris 12ème
DPE : E
469 000 €
Voir le bien
Disponible

Appartement Paris 13ème 75013 45.30 m² • 2 pièces • 2ème étage
Paris 13ème
DPE : A
441 495 €
Voir le bien
Disponible

Appartement Paris 13ème 75013 60.40 m² • 3 pièces • 6ème étage
Paris 13ème
DPE : A
610 289 €
Voir le bien
Disponible

Appartement Paris 13ème 75013 72.20 m² • 3 pièces • 14ème étage
Paris 13ème
DPE : A
873 039 €
Voir le bien
Disponible

Appartement Paris 13ème 75013 101.40 m² • 5 pièces • 8ème étage
Paris 13ème
DPE : A
1 172 070 €
Voir le bien
Disponible

Appartement Paris 13ème 75013 32.20 m² • 1 pièce • 7ème étage
Paris 13ème
DPE : A
332 260 €
Voir le bien
Disponible

Appartement Paris 13ème 75013 60.10 m² • 3 pièces • 2ème étage
Paris 13ème
DPE : A
521 269 €
Voir le bien
Disponible

Appartement Paris 13ème 75013 60.60 m² • 3 pièces • 14ème étage
Paris 13ème
DPE : A
668 219 €
Voir le bien
Disponible

Appartement Paris 13ème 75013 84.80 m² • 4 pièces • 14ème étage
Paris 13ème
DPE : A
1 035 029 €
Voir le bien
Disponible

Appartement Paris 13ème 75013 83.70 m² • 4 pièces • 2ème étage
Paris 13ème
DPE : A
838 562 €
Voir le bien
